Appartamento

In Vendita

Rescaldina (MI)

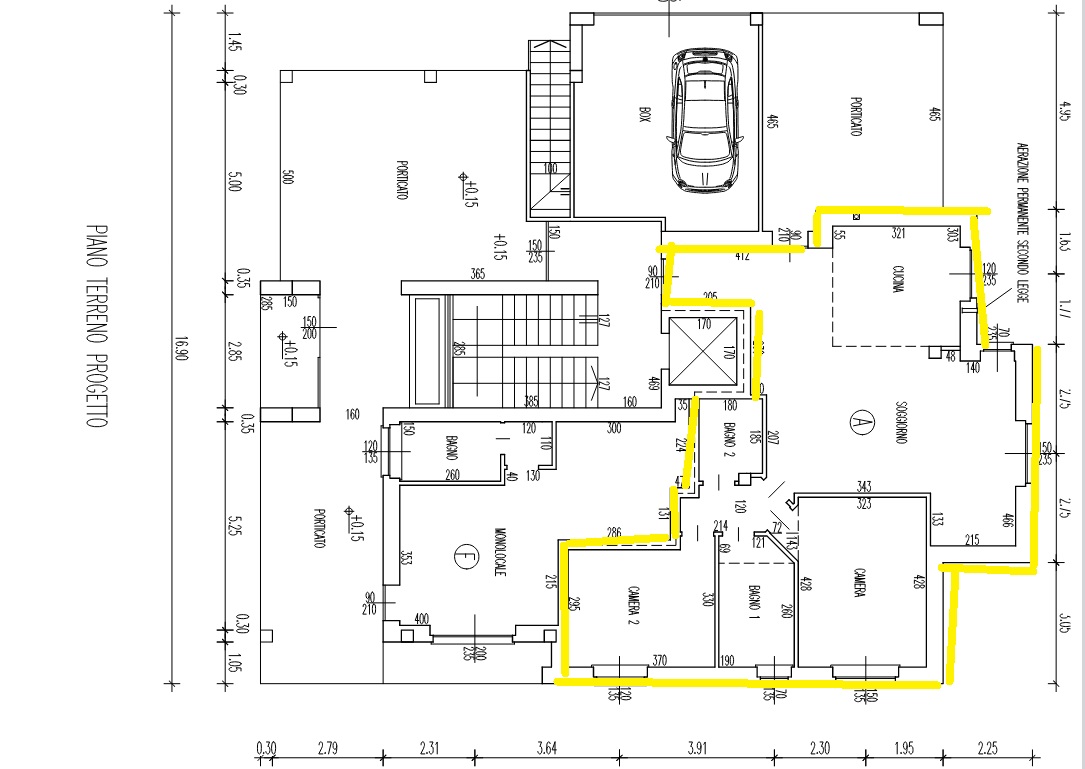
Ubicazione: Rescaldina (MI) Codice: V2024-40-1 Ottima posizione in zona tranquilla ma facilmente raggiungibile dal raccordo autostradale MI/VA uscita Rescaldina/Castellanza/Legnano. DI NUOVA REALIZZAZIONE! In Palazzina Signorile di 5 nuclei famigliari referenziati, ULTIMO appartamento di circa 115 Mq. composto da: Ingresso, ampio salone, cucina abitabile, due camere e doppi servizi entrambi finestrati al piano terra, mentre al piano interrato sono presenti il locale Hobby e la cantina, collegati tra loro, per un totale di ulteriori 74 mq. circa. Impiantistica autonoma: Riscaldamento con pompa di calore per ogni singola unità immobiliare alimentato da impianto fotovoltaico, già predisposto con parco pannelli solari. Riscaldamento a pavimento. Alto isolamento termico e acustico Ventilazione meccanica. Predisposizione impianto antintrusione. Serramenti con vetro isolante, dotato di un particolare trattamento, grazie a cui si riescono a contenere le dispersioni. Spese condominiali minime. Accessori di esclusiva pertinenza, il porticato coperto , l’area esterna di proprietà di mq. 242 circa e l’ampio box. In fase di finiture, possibilità di intervento sul capitolato con scelta dei materiali. Doppio accesso alla palazzina, uno indipendente. Fabbricato con criteri in materia di risparmio energetico. Tempistica di consegna da accordi, fine lavori e consegna chiavi. Offerta proposta in vendita. Richiesta economica: €. 350.000,00 APE: F/3 (immobili in corso di costruzione) Classe energetica alla consegna: A4 valore come da progetto.

Compila il Form e richiedi informazioni

Appartamento con giardino a Rescaldina (MI)

GDPR - Privacy policy*

Acconsento all’utilizzo dei miei dati per la ricezione di materiale pubblicitario nell’ambito delle iniziative promosse da Doris Immobiliare srls